节能方案论述
                
            
                
            
各类反应釜传统的加热方式基本都是采用电阻丝、燃气、燃油、生物燃料或者其它间接加热,几乎所有的加热方式都是利用温差的原理实现热量的传递,这种传统的加热工艺一方面在传递过程中会浪费热能,另一方面由于温差的大小会影响加热速度使得设备生产效率降低。本设备采用反应釜作为载体,可以采用电磁驱动加热的方式代替传统的传递式加热,直接对反应釜本体进行感应发热,因此加热速度可以得到提高。同时线圈可以布置在反应釜外壁,不会因反应釜内的高温而造成加热装置的损坏,同时加热过程中没有任何因为加热工艺产生的排放,解决了传统加热设备生产效率不高、加热元件维护频繁以及燃烧造成的环境污染等问题。
                
            
                
            
                
            
                
            
                
            
                
            
电磁加热器参数
PRODUCT DETAIL
                
            
一.使用条件:
1、加热温升范围1~600°C
2、受热介质:反应釜容器(铁质材料)温度可达到设定的温度
3、加热部位:客户指定的6套反应釜(Φ550 mm× L7 m)上进行均匀加热
4、使用环境:环境温度不超过45°C,无金属粉尘
二.技术要求:
1、适用电压380VAC 50Hz/60Hz
2、工作频率10~35 KHz
3、额定功率根据客户要求,按照设计的总功率进行配置
4、采用全桥电路,具有输入过压,输入欠压,输出过流,线圈短路、线圈开路、加热器过热、温度传感器短路、缺相等软硬件保护功能。
5、可以采用开关控制或者0~10V/4~20mA的模拟PID闭环控制,或者RS485半双工通讯信号
6、具有负载自动识别匹配功能
7、按照防爆要求,加热器采用强制水冷设计,对控制柜内电气与柜外的空气进行隔绝防爆
8、全数字智能DSP+IGBT软启动,功率因数≥95%
9、使用寿命5年以上,免费保修期1年,保修期外终生按成本维护。
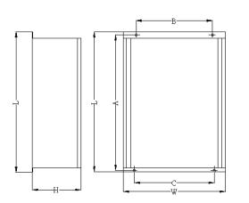
三.部分加热器的尺寸及外形:
                
            
| 部分加热器型号 | 
                                            外形尺寸(mm) | 
                                           安装孔距尺寸(mm) | ||||
| 
                                        L   | 
                                        W   | 
                                        H   | 
                                        A   | 
                                        B   | 
                                        C   | |
| 
                                        ZN-30G/S-F2&ZN-35G-F2   | 
                                        475   | 
                                        290   | 
                                        205   | 
                                        455   | 
                                        160   | 
                                        160   | 
| 
                                        ZN-40G-F2 | 
                                        475 | 
                                        340 | 
                                        205 | 
                                        455 | 
                                        210 | 
                                        210 | 
| 
                                        ZN-45S-F2&ZN-50G/S-F2 | 
                                        575 | 
                                        340 | 
                                        240 | 
                                        560 | 
                                        200 | 
                                        200 | 
| 
                                        ZN-60G-F2 | 
                                        580 | 
                                        330 | 
                                        215 | 
                                        562 | 
                                        213 | 
                                        213 | 
| 
                                        ZN-70S-F2&ZN-80S-F2 | 
                                        660 | 
                                        400 | 
                                        240 | 
                                        638 | 
                                        275 | 
                                        275 | 
                    
                
                    L:机箱长度(含风扇及固定脚)    W:机箱宽度(含端子)      H                    :机箱高度(含盖板)
                    
A:上下两排安装孔间距 B:上排两个安装孔间距 C :下排两个安装孔间距
                                               
 
                
                    
                
                
            
                
            
加热器及线圈安装技术要求及布置示意图如下:
1. 多台加热器并联采取同步控制方式避免同个反应釜上不同加热器相互的干扰,以及不同反应釜上的加热器的相互干扰所引起的加热器故障或者输出功率不稳定问题。
2. 为了达到隔爆的要求,加热器散热采用全水冷式。线圈的隔爆建议客户采用不锈钢等外壳防护。
                
            
 
            
                
            
实施工艺
PRODUCT DETAIL
                
            
铁质材料的反应釜,其感应特性可以确定,因此可以采用如下方案实施。
1.在反应釜本体包裹5cm左右保温层,然后进行线圈的均匀绕制,大概单台50KW绕40~50圈(双股),线圈采用定制高温导线,绕制完成后的电感量根据机型、绕线密度确定,采用多股并联以增加加热面积和釜体受热的均匀性。从反应釜到控制柜的引线部分根据布置预留。
2.考虑到动力柜需要隔爆,则选择水冷加热器,将加热器布置到动力柜内,进行统一通水进行循环散热,冷却水系统由客户提供到动力柜接口。如果反应釜外需要安装外壳防护进行隔爆,可以采用增大外壳板的距离或者在外壳板内侧做好电磁屏蔽的不锈钢外壳(客户负责)。
3.连接感应线圈到加热器,连接控制信号到加热器,给加热器提供3相480V动力,并按照国标规范做好动力柜和反应釜的可靠接地。
4.通电加热测试,并观察加热器显示盒参数,根据第12项参数(负载匹配率保持在90~100之间)适当调整匝数多少和线圈的疏密度以保证负载和加热器的合理匹配。
                
            
主要特点
1. 可以采用微电脑智能控制,工作状态动态显示。
2. 加热升温时间短、能量转换效率高,采用的是直接加热反应釜的方式,减少中间热传递过程,提高热效率利用。
3. 安装方便,一次性投入成本低,只在反应釜上安装感应线即可,不会对结构进行大量的调整。
4. 运行成本低,无需管道、锅炉、煤场、真正实现无人值守。
5. 升温速度快,温度高,加热介质与电分离。
5.软启动,无启动冲击电流。
6.可设置加热温度,但温度到达设定温度后,机器自动进入保温状态。
7.加热控制:0~5档功率可调,根据自己的需要选择档位,达到好操作、更节能。或者根据需要采用0~10V、4~20mA线性控制输出功率防止温度过冲。或者采用标准Modbus协议远程控制。
8.当加热出现异常时,显示盒会出现相应故障代码提供检修措施,并输出报警信号。
                
            
                
            
                
            
                
            
类似参考案例
PRODUCT DETAIL
                                        
 
            
                                         
            
                
            
400电话